Dossiers Urbanisme

Permis de construire et déclaration préalable en Ardèche

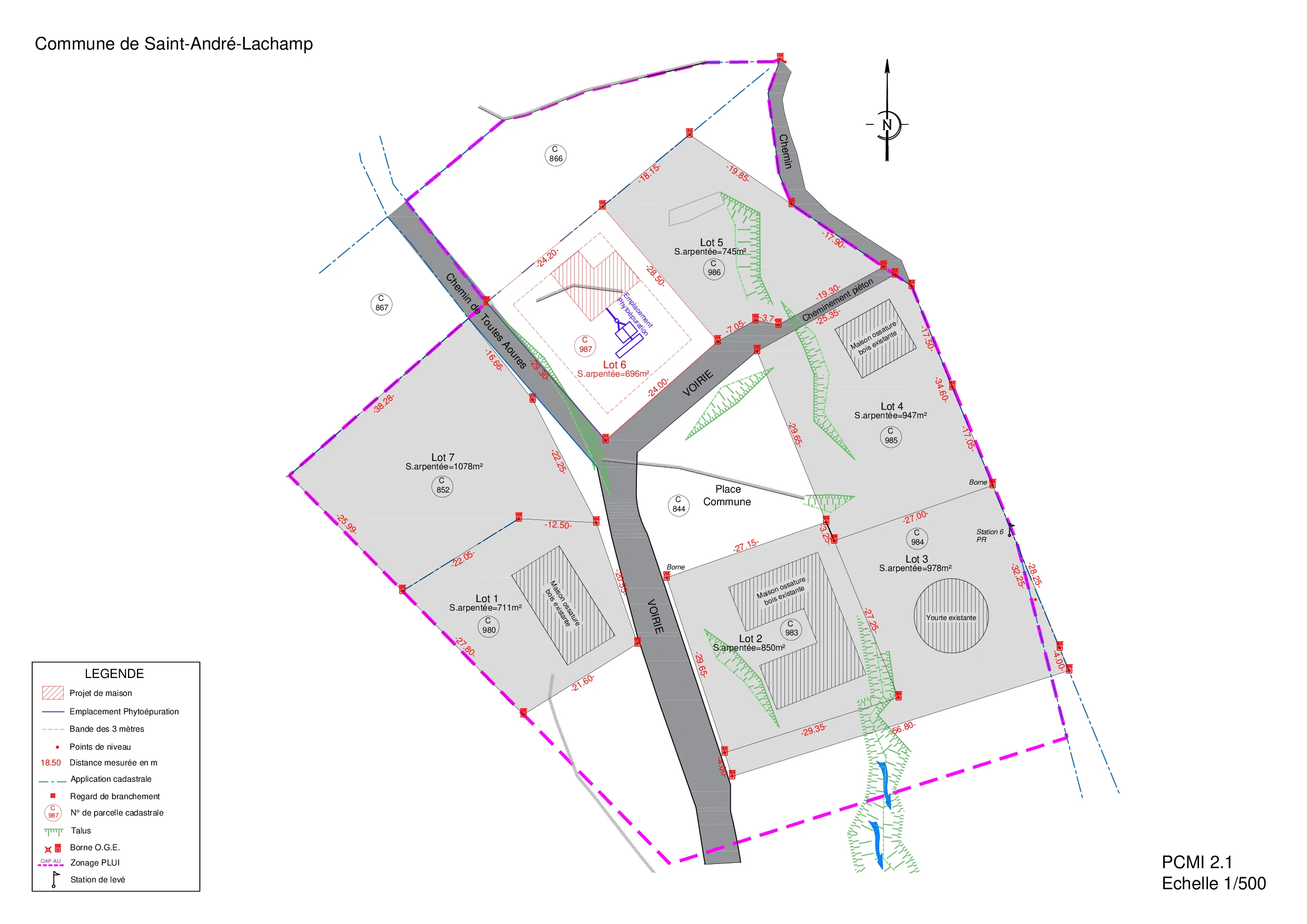
Plan de masse pour permis de construire

Je constitue vos dossiers d'urbanisme : permis de construire, déclaration préalable, changement de destination. Dossier complet, prêt à être déposer en mairie.

Un permis de construire, de quoi est-il composé ?

Un permis de construire, de quoi est-il composé ?

Un dossier de permis de construire regroupe plusieurs pièces obligatoires : plan de situation, plan de masse, plan de coupe, plans des façades mais également une insertion paysagère, des photos de l'existant et une notice descriptive.

Je peux me charger de l'ensemble : plans cotés, pièces graphiques, notice, formulaire Cerfa. Et si vous le souhaitez, du dépôt en mairie (à votre nom) et des échanges avec les services en charge de l'urbanisme jusqu'à l'obtention de l'accord de votre dossier.

Permis de construire ou déclaration préalable ?

Permis de construire (PC)

  • Construction neuve de plus de 20 m²
  • Extension créant plus de 40 m² en zone urbaine (ou plus de 20 m² hors zone urbaine)
  • Si votre agrandissement porte la surface habitable à plus de 150 m²
  • Changement de destination avec modification de façade ou de structure

Déclaration préalable (DP)

  • Construction ou extension de moins de 20 m²
  • Modification de façade (fenêtre, porte, ravalement)
  • Création/modification d'un aménagement intérieur et/ou extérieur
  • Changement de destination sans travaux sur la structure

Vous ne savez pas encore ce qui s'applique à votre projet ? Je peux vous aider à y voir plus clair.

Changement de destination

Changement de destination

Transformer une grange en maison, un garage ou un local commercial en appartement : ces projets nécessitent une autorisation d'urbanisme.

  • Si les travaux modifient la façade ou la structure → permis de construire
  • Si les travaux sont intérieurs uniquement → déclaration préalable

Je m'occupe du relevé de l'existant et du dépôt de dossier en mairie.

Les avantages de travailler avec un dessinateur projeteur en Sud Ardèche

Connaissance des règles locales

Chaque commune a son PLU, sa réglementation et ses contraintes. Je connais les spécificités du Sud Ardèche et du Nord Gard.

Déplacements sur site

Je me déplace pour les relevés et les photos réglementaires, sans frais supplémentaires dans ma zone d'intervention.

Dialogue avec les mairies

Un interlocuteur local, c'est souvent plus simple pour échanger avec les services d'urbanisme.

Les phases d’un projet

1

Premier échange

Vous m'expliquez votre projet par téléphone ou par email. Je vous dis si je peux vous aider et ce qu'il faut prévoir.

2

Devis

Je vous envoie un devis clair, adapté à votre dossier.

3

Réalisation

Je réalise les plans, la notice, les pièces graphiques. Je me déplace si nécessaire pour les relevés et les photos.

4

Réception

Vous recevez un dossier complet au format PDF, prêts à transmettre à votre mairie ou sur le guichet en ligne.

Zone d'intervention

Basé à Berrias-et-Casteljau, je me déplace pour les relevés et accompagne vos démarches.

Sud Ardèche (07)

  • Les Vans
  • Ruoms
  • Aubenas
  • Vallon-Pont-d'Arc
  • Joyeuse
  • Lablachère

Nord Gard (30)

  • Barjac
  • Saint-Ambroix

Sur demande

Sud Lozère et au-delà selon projet

Vous êtes un professionnel ?

Artisan, commerçant, restaurateur : je travaille aussi avec les professionnels. Dossiers ERP, changements d'enseigne, modification de façade : contactez-moi pour en parler.

Questions fréquentes

Faut-il obligatoirement un architecte pour déposer un permis de construire en Ardèche ?

Non, le recours à un architecte n'est obligatoire que si la surface habitable dépasse 150 m2. En dessous de cette surface, un dessinateur projeteur peut constituer le dossier.

Combien coûte un dossier de permis de construire ?

Le tarif dépend de la complexité du projet. Comptez généralement entre 800 € et 1500 € pour un dossier complet. Je vous envoie un devis détaillé après avoir étudié votre projet.

Combien de temps faut-il pour obtenir un permis de construire en Sud Ardèche ?

Le délai d'instruction est de 2 mois pour une maison individuelle, 3 mois si le projet se situe dans un secteur protégé. La constitution du dossier prend généralement 2 à 4 semaines en amont.

Que se passe-t-il si la mairie demande des pièces complémentaires ?

Je m'occupe des modifications et des échanges avec le service urbanisme jusqu'à l'obtention de l'accord.

Vous déplacez-vous pour faire les photos et les relevés ?

Oui, je me déplace sur le terrain pour réaliser les relevés, les photos réglementaires (PCMI7, PCMI8), qui serviront pour l'intégration paysagère et vérifier les contraintes du site.

Je n'ai pas encore de plans, juste une idée de projet. Vous pouvez m'aider ?

Oui. Je peux vous accompagner dès la conception : esquisses, plans, jusqu'au dossier déposable. Consultez la page Relevés & Plans 2D pour en savoir plus.

Comment transformer une grange ou un mas en habitation en Ardèche ?

Il faut d'abord vérifier que le PLU de la commune autorise le changement de destination. Ensuite, si les travaux modifient la façade ou la structure, un permis de construire est nécessaire. Si les travaux sont uniquement intérieurs, une déclaration préalable suffit. Je réalise le relevé de l'existant et le dossier complet pour la mairie.

Un projet à déposer en mairie ?

Parlons-en

Gratuit et sans engagement • Réponse sous 48h